1762 Jakes Drive, Panama City, FL 32405
Active
Property Photos
Would you like to sell your home before you purchase this one?
Priced at Only: $258,000
For more Information Call:
Address: 1762 Jakes Drive, Panama City, FL 32405
Property Location and Similar Properties
- MLS#: 783241 ( Residential )
- Street Address: 1762 Jakes Drive
- Viewed: 7
- Price: $258,000
- Price sqft: $174
- Waterfront: No
- Year Built: 2023
- Bldg sqft: 1484
- Bedrooms: 3
- Total Baths: 3
- Full Baths: 2
- 1/2 Baths: 1
- Garage / Parking Spaces: 1
- Days On Market: 69
- Additional Information
- Geolocation: 30.2278 / -85.6261
- County: BAY
- City: Panama City
- Zipcode: 32405
- Subdivision: Jakes Landing
- Elementary School: Deer Point
- Middle School: Mowat
- High School: Mosley
- Provided by: World Impact Real Estate
- DMCA Notice
-
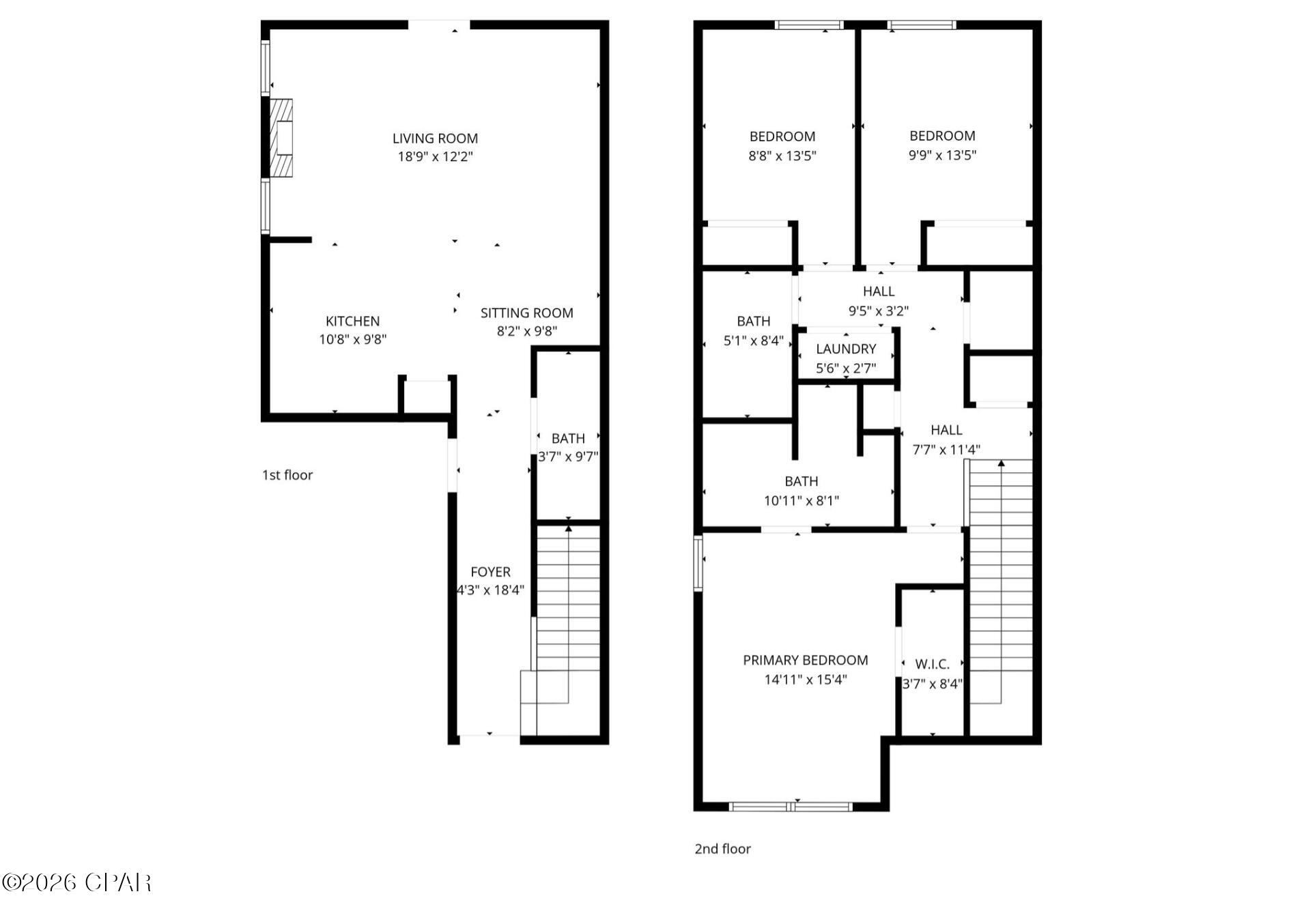
DescriptionWell maintained 3 bedroom, 2.5 bath townhouse located in a central Panama City location with convenient access to shopping, dining, schools, and major roadways. This home features a 1 car garage, an open and functional floor plan, and low maintenance living. The main level offers a comfortable living area, kitchen, and half bathideal for everyday living and entertaining. Upstairs, you'll find all three bedrooms, including a spacious primary suite with private bath, plus two additional bedrooms and a full guest bathroom. Perfect for a primary residence or investment opportunity, this townhouse combines location, space, and convenience in one package. Call your favorite agent for a showing!
Payment Calculator
- Principal & Interest -
- Property Tax $
- Home Insurance $
- HOA Fees $
- Monthly -
For a Fast & FREE Mortgage Pre-Approval
Apply Now
Apply NowFeatures
Building and Construction
- Covered Spaces: 0.00
- Exterior Features: Patio
- Living Area: 0.00
School Information
- High School: Mosley
- Middle School: Mowat
- School Elementary: Deer Point
Garage and Parking
- Garage Spaces: 1.00
- Open Parking Spaces: 0.00
Utilities
- Carport Spaces: 0.00
- Cooling: CentralAir
- Heating: Central, Electric
- Sewer: PublicSewer
- Utilities: ElectricityAvailable
Finance and Tax Information
- Home Owners Association Fee: 0.00
- Insurance Expense: 0.00
- Net Operating Income: 0.00
- Other Expense: 0.00
- Pet Deposit: 0.00
- Security Deposit: 0.00
- Tax Year: 2024
- Trash Expense: 0.00
Other Features
- Appliances: ElectricOven, ElectricRange, ElectricWaterHeater
- Legal Description: JAKES LANDING LOT 66 ORB 4698 P 1447
- Area Major: 02 - Bay County - Central
- Occupant Type: Occupied
- Parcel Number: 11588-980-330
- The Range: 0.00
Similar Properties
Nearby Subdivisions
[no Recorded Subdiv]
Andrews Plantation
Baldwin Rowe
Bayview Add
Burnham Way
Camryn's Crossing
Candlewick Acres
Chandlee 3rd Add
Chandlee 3rd Add To Pc
Coastal Lands 2nd Add
College Village Unit 1
Delwood Estates Ph 1
Douglas Road Sub
Drummond & Ware Add
Floridian Place
Forest Hills Unit 1
Forest Hills Unit 3
Forest Park
Forest Park 1st Add
Forest Park 3rd Add
Forest Park 5th Add
Forest Park East
Forest Park East U-2
Greentree Heights
Hawks Landing
Hentz 1st Add Unit A
Hentz 1st Add Unit B
Highland City
Hl Sudduth 1st Add
Horizon Pointe
Huntingdon Estates U-1
Huntingdon Estates U-2
Huntingdon Estates U-3
Island View Estates
Jakes Landing
King Estates Unit 2
Kings Point
Kings Point 2nd Add
Kings Point 6th Add
Kings Point Harbour U-i Replat
Kings Ranch
Lake Marin
No Named Subdivision
Northshore Islands
Northshore Phase Vii
Oakland Terrace Add
Oxford Place
Oxford Place Unit 2
Pretty Bayou 2nd
Pretty Bayou Hts 1st
Pretty Bayou Hts 2nd
Sherwood Unit 2
Sherwood Unit 5
St Andrews Bay Dev Cmp
St. Andrews Bay Dev. Co.
Sweetbay
Ten Acre Addition
Ten Acre Terrace
The Woods Phase 2
The Woods Phase 3
Venetian Villa
Venetian Villa 1st Add Replat
Woodland Estates
Woodridge
- Robert A. Pelletier Jr, REALTOR ®
- Tropic Shores Realty
- Mobile: 239.218.1565
- Mobile: 239.218.1565
- Fax: 352.503.4780
- robertsellsparadise@gmail.com


